8 800 222 6657 Написать в Телеграмм
Звонок Звонок
Поиск Поиск
Список избранного
Список удалится: 21.03.2026г.
Войдите в профиль, чтобы сохранить
Вход
Регистрация
Нет товаров в избранном!
Добавьте товары в избранное, чтобы перейти в раздел
Посмотреть проекты
Личный кабинетЛичный кабинет
Меню Меню

Двухэтажный дом «Ренато»

Базовая
Без отделки
Под чистовую
5 952 000 ₽
Оставить заявку
Обсудить проект
133 м²
2 этажа
4
2

О проекте

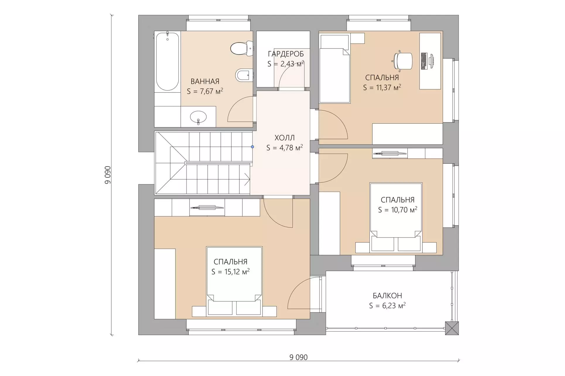
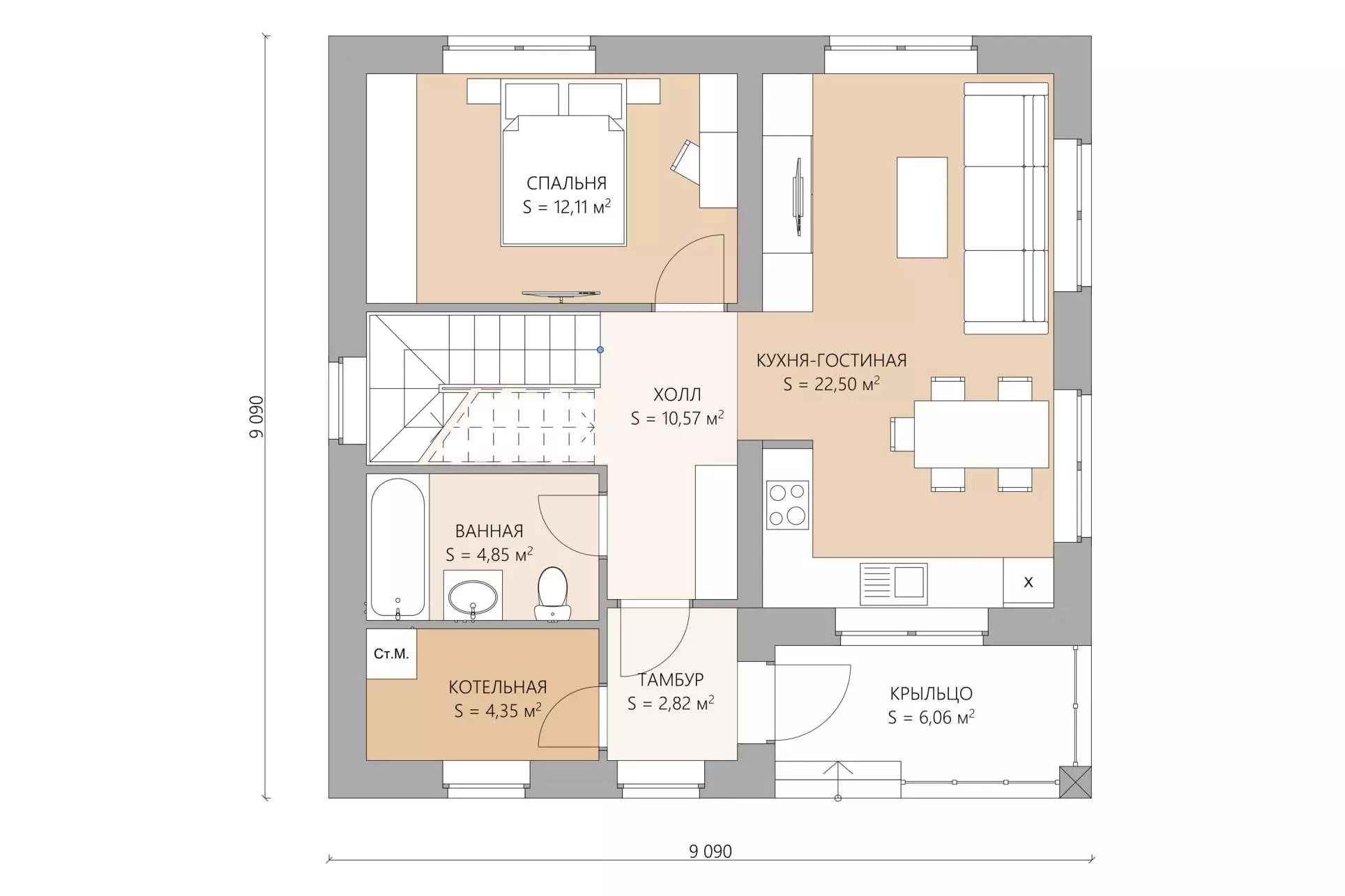
«Ренато» - современный проект двухэтажного дома. Особенностью экстерьера проекта «Ренато» является комбинирование разнофактурных отделочных материалов - облицовочного кирпича и планкена. Главный фасад здания украшает открытый балкон, который органично вписывается в общую композицию с крыльцом, создавая ощущение единого пространства. На первом этаже дома разместились просторная кухня-гостиная, удобный холл, гостевая комната, санузел и техническое помещение. Второй этаж отведён под жилую зону. Он вместил в себя три спальни, ванную комнату и гардеробную. Одна из комнат имеет собственный выход на балкон, что добавляет ей дополнительное удобство и привлекательность. Проект «Ренато» отлично подойдет для большой семьи, в которой ценят практичность и комфорт.

Двухэтажный дом «Ренато»

Комплектация дома
Базовая
Без отделки
Под чистовую
Фундамент
Свайно–ростверковый на забивных железобетонных сваях С 30.20 (высота ростверка ≥ 400 мм, размер сваи - 200*200*3000мм)+++
Внешний облик / Экстерьер
Внешние несущие стены из газобетона 625*250*300 D300
Внутренние несущие стены из газобетона 625*250*250 D400 и/или 625*250*300 D300
+++
Облицовка фасада-++
Крыльцо с бетонными ступенями и навесом+++
Терраса крытая, не остекленная, с деревянными окрашенными стойками (если предусмотренно проектом)+++
Отделка цоколя и ступеней крыльца---
Входная металлическая дверь-++
Перекрытия
Железобетонные пустотные плиты перекрытия+++
Крыша
Стропильная система, обработанная огнебиозащитными составами. Гидро–ветрозащита+++
Покрытие - профиль декоративный Монтерра-X по деревянным стропилам, с защитой от гниения и возгорания+++
Обшивка фронтонных и карнизных свесов перфорированными пластиковыми софитами-++
Водосточная система из ПВХ-++
Снегозадержатели-++
Минераловатный утеплитель толщиной 200 мм-++
Окна
Пластиковые окна с двухкамерными стеклопакетами, профиль 70 мм-++
Пластиковые подоконники--+
Уличные отливы, окрашенные в цвет профиля-++
Вентиляция, дымоход
Вентиляционные выходы с утеплением-++
Система вентиляции из ПВХ--+
Кирпичный каминный дымоход с декоративным колпаком---
Отопление
Котел (газовый либо электрический)--+
Алюминиевые секционные радиаторы отопления--+
Водяные теплые полы (для ГАЗОВЫХ котлов) в местах укладки напольной плитки (кроме котельной)--+
Электроснабжение
Вывод питающего медного кабеля в доме+++
Контур заземления--+
Разводка электрических и ТВ кабелей внутри дома с установленными подрозетниками--+
Электрощит внутри дома с автоматами--+
Карболитовые патроны с лампочками--+
Розетки и выключатели---
Водоснабжение
Вывод водопроводной трубы в котельной (от колодца)+++
Выводы ГВС и ХВС в местах установки сантехнических приборов--+
Магистральный фильтр очистки воды--+
Гидроаккумулятор с блоком автоматики--+
Ванна, смеситель для ванны и душевая кабина---
Унитаз---
Раковина с пьедесталом---
Смесители для раковин---
Водоотведение
Вывод канализационной трубы от котельной до внешнего края фундамента (+1 м)+++
Станция биологической очистки на 5 человек постоянного проживания--+
Внутренняя отделка
Штукатурка стен с армированием стеклотканевой сеткой--+
Стяжка полов с утеплением и гидроизоляцией--+
Межкомнатные перегородки из газобетона 625*250*100 D400--+
Армирование внешних углов--+
Шпатлевка стен в 2 слоя со шлифовкой--+
Пластиковые откосы окон и входных дверей--+
Окраска стен в 2 слоя---
Натяжные потолки---
Межкомнатные двери в комплекте с ручками, петлями, доборами и наличниками---
Межэтажная деревянная лестница без окраски---
Плинтуса из ПВХ с кабель–каналом---
Ламинат (класс не менее 32)---
Плитка напольная---
Плитка настенная---
Порожки---
Базовая
Без отделки
Под чистовую
Фундамент
Входит в комплектацию
  • Свайно–ростверковый на забивных железобетонных сваях С 30.20 (высота ростверка ≥ 400 мм, размер сваи - 200*200*3000мм)
Внешний облик / Экстерьер
Входит в комплектацию
  • Внешние несущие стены из газобетона 625*250*300 D300
    Внутренние несущие стены из газобетона 625*250*250 D400 и/или 625*250*300 D300
  • Крыльцо с бетонными ступенями и навесом
  • Терраса крытая, не остекленная, с деревянными окрашенными стойками (если предусмотренно проектом)
Не входит в комплектацию
  • Облицовка фасада
  • Отделка цоколя и ступеней крыльца
  • Входная металлическая дверь
Перекрытия
Входит в комплектацию
  • Железобетонные пустотные плиты перекрытия
Крыша
Входит в комплектацию
  • Стропильная система, обработанная огнебиозащитными составами. Гидро–ветрозащита
  • Покрытие - профиль декоративный Монтерра-X по деревянным стропилам, с защитой от гниения и возгорания
Не входит в комплектацию
  • Обшивка фронтонных и карнизных свесов перфорированными пластиковыми софитами
  • Водосточная система из ПВХ
  • Снегозадержатели
  • Минераловатный утеплитель толщиной 200 мм
Окна
Не входит в комплектацию
  • Пластиковые окна с двухкамерными стеклопакетами, профиль 70 мм
  • Пластиковые подоконники
  • Уличные отливы, окрашенные в цвет профиля
Вентиляция, дымоход
Не входит в комплектацию
  • Вентиляционные выходы с утеплением
  • Система вентиляции из ПВХ
  • Кирпичный каминный дымоход с декоративным колпаком
Отопление
Не входит в комплектацию
  • Котел (газовый либо электрический)
  • Алюминиевые секционные радиаторы отопления
  • Водяные теплые полы (для ГАЗОВЫХ котлов) в местах укладки напольной плитки (кроме котельной)
Электроснабжение
Входит в комплектацию
  • Вывод питающего медного кабеля в доме
Не входит в комплектацию
  • Контур заземления
  • Разводка электрических и ТВ кабелей внутри дома с установленными подрозетниками
  • Электрощит внутри дома с автоматами
  • Карболитовые патроны с лампочками
  • Розетки и выключатели
Водоснабжение
Входит в комплектацию
  • Вывод водопроводной трубы в котельной (от колодца)
Не входит в комплектацию
  • Выводы ГВС и ХВС в местах установки сантехнических приборов
  • Магистральный фильтр очистки воды
  • Гидроаккумулятор с блоком автоматики
  • Ванна, смеситель для ванны и душевая кабина
  • Унитаз
  • Раковина с пьедесталом
  • Смесители для раковин
Водоотведение
Входит в комплектацию
  • Вывод канализационной трубы от котельной до внешнего края фундамента (+1 м)
Не входит в комплектацию
  • Станция биологической очистки на 5 человек постоянного проживания
Внутренняя отделка
Не входит в комплектацию
  • Штукатурка стен с армированием стеклотканевой сеткой
  • Стяжка полов с утеплением и гидроизоляцией
  • Межкомнатные перегородки из газобетона 625*250*100 D400
  • Армирование внешних углов
  • Шпатлевка стен в 2 слоя со шлифовкой
  • Пластиковые откосы окон и входных дверей
  • Окраска стен в 2 слоя
  • Натяжные потолки
  • Межкомнатные двери в комплекте с ручками, петлями, доборами и наличниками
  • Межэтажная деревянная лестница без окраски
  • Плинтуса из ПВХ с кабель–каналом
  • Ламинат (класс не менее 32)
  • Плитка напольная
  • Плитка настенная
  • Порожки
Фундамент
Входит в комплектацию
  • Свайно–ростверковый на забивных железобетонных сваях С 30.20 (высота ростверка ≥ 400 мм, размер сваи - 200*200*3000мм)
Внешний облик / Экстерьер
Входит в комплектацию
  • Внешние несущие стены из газобетона 625*250*300 D300
    Внутренние несущие стены из газобетона 625*250*250 D400 и/или 625*250*300 D300
  • Облицовка фасада
  • Крыльцо с бетонными ступенями и навесом
  • Терраса крытая, не остекленная, с деревянными окрашенными стойками (если предусмотренно проектом)
  • Входная металлическая дверь
Не входит в комплектацию
  • Отделка цоколя и ступеней крыльца
Перекрытия
Входит в комплектацию
  • Железобетонные пустотные плиты перекрытия
Крыша
Входит в комплектацию
  • Стропильная система, обработанная огнебиозащитными составами. Гидро–ветрозащита
  • Покрытие - профиль декоративный Монтерра-X по деревянным стропилам, с защитой от гниения и возгорания
  • Обшивка фронтонных и карнизных свесов перфорированными пластиковыми софитами
  • Водосточная система из ПВХ
  • Снегозадержатели
  • Минераловатный утеплитель толщиной 200 мм
Окна
Входит в комплектацию
  • Пластиковые окна с двухкамерными стеклопакетами, профиль 70 мм
  • Уличные отливы, окрашенные в цвет профиля
Не входит в комплектацию
  • Пластиковые подоконники
Вентиляция, дымоход
Входит в комплектацию
  • Вентиляционные выходы с утеплением
Не входит в комплектацию
  • Система вентиляции из ПВХ
  • Кирпичный каминный дымоход с декоративным колпаком
Отопление
Не входит в комплектацию
  • Котел (газовый либо электрический)
  • Алюминиевые секционные радиаторы отопления
  • Водяные теплые полы (для ГАЗОВЫХ котлов) в местах укладки напольной плитки (кроме котельной)
Электроснабжение
Входит в комплектацию
  • Вывод питающего медного кабеля в доме
Не входит в комплектацию
  • Контур заземления
  • Разводка электрических и ТВ кабелей внутри дома с установленными подрозетниками
  • Электрощит внутри дома с автоматами
  • Карболитовые патроны с лампочками
  • Розетки и выключатели
Водоснабжение
Входит в комплектацию
  • Вывод водопроводной трубы в котельной (от колодца)
Не входит в комплектацию
  • Выводы ГВС и ХВС в местах установки сантехнических приборов
  • Магистральный фильтр очистки воды
  • Гидроаккумулятор с блоком автоматики
  • Ванна, смеситель для ванны и душевая кабина
  • Унитаз
  • Раковина с пьедесталом
  • Смесители для раковин
Водоотведение
Входит в комплектацию
  • Вывод канализационной трубы от котельной до внешнего края фундамента (+1 м)
Не входит в комплектацию
  • Станция биологической очистки на 5 человек постоянного проживания
Внутренняя отделка
Не входит в комплектацию
  • Штукатурка стен с армированием стеклотканевой сеткой
  • Стяжка полов с утеплением и гидроизоляцией
  • Межкомнатные перегородки из газобетона 625*250*100 D400
  • Армирование внешних углов
  • Шпатлевка стен в 2 слоя со шлифовкой
  • Пластиковые откосы окон и входных дверей
  • Окраска стен в 2 слоя
  • Натяжные потолки
  • Межкомнатные двери в комплекте с ручками, петлями, доборами и наличниками
  • Межэтажная деревянная лестница без окраски
  • Плинтуса из ПВХ с кабель–каналом
  • Ламинат (класс не менее 32)
  • Плитка напольная
  • Плитка настенная
  • Порожки
Фундамент
Входит в комплектацию
  • Свайно–ростверковый на забивных железобетонных сваях С 30.20 (высота ростверка ≥ 400 мм, размер сваи - 200*200*3000мм)
Внешний облик / Экстерьер
Входит в комплектацию
  • Внешние несущие стены из газобетона 625*250*300 D300
    Внутренние несущие стены из газобетона 625*250*250 D400 и/или 625*250*300 D300
  • Облицовка фасада
  • Крыльцо с бетонными ступенями и навесом
  • Терраса крытая, не остекленная, с деревянными окрашенными стойками (если предусмотренно проектом)
  • Входная металлическая дверь
Не входит в комплектацию
  • Отделка цоколя и ступеней крыльца
Перекрытия
Входит в комплектацию
  • Железобетонные пустотные плиты перекрытия
Крыша
Входит в комплектацию
  • Стропильная система, обработанная огнебиозащитными составами. Гидро–ветрозащита
  • Покрытие - профиль декоративный Монтерра-X по деревянным стропилам, с защитой от гниения и возгорания
  • Обшивка фронтонных и карнизных свесов перфорированными пластиковыми софитами
  • Водосточная система из ПВХ
  • Снегозадержатели
  • Минераловатный утеплитель толщиной 200 мм
Окна
Входит в комплектацию
  • Пластиковые окна с двухкамерными стеклопакетами, профиль 70 мм
  • Пластиковые подоконники
  • Уличные отливы, окрашенные в цвет профиля
Вентиляция, дымоход
Входит в комплектацию
  • Вентиляционные выходы с утеплением
  • Система вентиляции из ПВХ
Не входит в комплектацию
  • Кирпичный каминный дымоход с декоративным колпаком
Отопление
Входит в комплектацию
  • Котел (газовый либо электрический)
  • Алюминиевые секционные радиаторы отопления
  • Водяные теплые полы (для ГАЗОВЫХ котлов) в местах укладки напольной плитки (кроме котельной)
Электроснабжение
Входит в комплектацию
  • Вывод питающего медного кабеля в доме
  • Контур заземления
  • Разводка электрических и ТВ кабелей внутри дома с установленными подрозетниками
  • Электрощит внутри дома с автоматами
  • Карболитовые патроны с лампочками
Не входит в комплектацию
  • Розетки и выключатели
Водоснабжение
Входит в комплектацию
  • Вывод водопроводной трубы в котельной (от колодца)
  • Выводы ГВС и ХВС в местах установки сантехнических приборов
  • Магистральный фильтр очистки воды
  • Гидроаккумулятор с блоком автоматики
Не входит в комплектацию
  • Ванна, смеситель для ванны и душевая кабина
  • Унитаз
  • Раковина с пьедесталом
  • Смесители для раковин
Водоотведение
Входит в комплектацию
  • Вывод канализационной трубы от котельной до внешнего края фундамента (+1 м)
  • Станция биологической очистки на 5 человек постоянного проживания
Внутренняя отделка
Входит в комплектацию
  • Штукатурка стен с армированием стеклотканевой сеткой
  • Стяжка полов с утеплением и гидроизоляцией
  • Межкомнатные перегородки из газобетона 625*250*100 D400
  • Армирование внешних углов
  • Шпатлевка стен в 2 слоя со шлифовкой
  • Пластиковые откосы окон и входных дверей
Не входит в комплектацию
  • Окраска стен в 2 слоя
  • Натяжные потолки
  • Межкомнатные двери в комплекте с ручками, петлями, доборами и наличниками
  • Межэтажная деревянная лестница без окраски
  • Плинтуса из ПВХ с кабель–каналом
  • Ламинат (класс не менее 32)
  • Плитка напольная
  • Плитка настенная
  • Порожки

Вам может понравиться

портфолио

vert1
vert2
123213
2123123
sqrrr1
sqrrr12
12
123321
1
1